Key considerations
The project presented a series of unique challenges, requiring innovative solutions and seamless collaboration among stakeholders. The site’s expansive scale demanded careful coordination of earthworks, with cut and fill volumes exceeding 119,000 m³ and 113,000 m³, respectively.
Managing stormwater across two primary catchments and multiple sub-catchments required advanced modelling to ensure effective runoff control and flood mitigation. Integrating smart city infrastructure, such as IoT systems and hydrogen-ready networks, added further complexity to the design process. Additionally, the team needed to align designs with the planned metro station and adjacent developments, including future roads and utilities, while ensuring compliance with stringent environmental and planning standards.
The Bradfield City Centre project addresses Sydney’s western expansion and the need for future-ready urban infrastructure. Key challenges included:
- Complex Site Conditions: Managing substantial earthworks and balancing cut and fill volumes while preserving catchments and natural waterways.
- Stakeholder Coordination: Aligning designs with adjacent developments, such as Sydney Metro and Badgerys Creek Road upgrade. Integrating civil works with future infrastructure.
- Sustainability Goals: Designing infrastructure to meet net-zero emissions targets and integrate advanced smart city technologies.
- Stormwater Management: Designing systems to manage runoff from large impervious surfaces across multiple catchments and sub-catchments. Early-stage collaboration with stakeholders and innovative stormwater modelling were critical to overcoming complex site conditions.
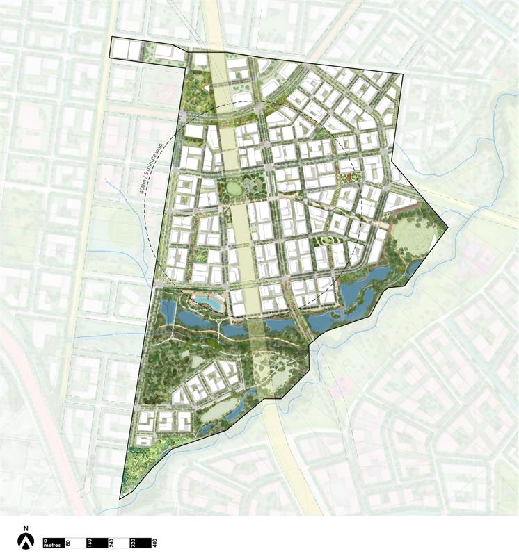
- People centred connectivity: SMEC worked closely with the design team to optimise road layouts and integrate active transport and footpaths, creating a hierarchy of spaces to enhance liability. Road sections are carefully designed to delineate footpaths, cycle paths, public transport and vehicle passage. Roads have been engineered to enable sustainable tree canopy and maximise shade.
- Smart City Activation: Embedding advanced technologies, such as renewable energy networks and IoT systems, into the foundational design. A complex network of underground services has been modelled and coordinated to ensure all utility services are harmonised, achieving conflict-free design.
- Water Services Coordination: represents a highly intricate undertaking, requiring meticulous planning and integration of potable, recycled, and wastewater systems within a densely engineered site. The complexity arises from aligning these services with stormwater infrastructure, underground utilities, and the future Aerotropolis metro station, all while accommodating the city’s smart technology aspirations. By leveraging advanced digital modelling and close collaboration with stakeholders, the team has optimized the layout to avoid service clashes and ensure compliance with strict regulatory standards.

Salient design features
SMEC delivered a comprehensive civil and utilities design to align with Bradfield’s sustainability and innovation goals:
- Drainage and Water Management: Integrated bioretention basins and advanced stormwater systems to ensure climate-resilient water management.
- Sub-Catchments and Basins: The two primary catchments (A: 17.56 ha, B: 1.55 ha) were divided into sub-catchments, ensuring localized stormwater management.
- Basin 1: 4,500 m³ capacity, servicing sub-catchments in Catchment A.
- Basin 2: 2,100 m³ capacity, handling runoff from Catchment B.
- Parcel Integration: Parcels (P1-P6) correspond to specific sub-catchments, enabling precise control of stormwater flow and future adaptability.
- Smart City Integration: Embedded IoT infrastructure, hydrogen-ready systems, and renewable energy solutions to future-proof the city.
- Road networks: Designed roads and intersections to enhance connectivity, integrating 17.8 km of active transport pathways.

Sustainability and Innovation
Bradfield City Centre represents a new standard for smart and sustainable urban development in Australia. SMEC’s designs focused on minimising carbon emissions, integrating green infrastructure, and enhancing water efficiency. Bioretention basins, smart drainage systems, and tree canopy provisions were pivotal in mitigating urban heat and managing stormwater. SMEC’s advanced modelling tools optimized earthworks to balance cut-and-fill requirements. SMEC’s forward-thinking design incorporated:
- Environmental resilience: Advanced stormwater systems manage a total of 6,600 m³, equivalent to 2.6 Olympic-sized swimming pools of runoff. Incorporating water-sensitive urban design (WSUD) principles, incorporating swales and advanced stormwater modelling, optimising bioretention and detention basin designs.
- Economic Growth: Thousands of high-paying jobs will be created in advanced manufacturing and innovation sectors.
- IoT networks and hydrogen-ready systems for a smart city ecosystem.
- Future adaptability, with parcels (P5-A, P6) planned for seamless integration into subsequent development phases.
- Using advanced earthworks modelling to minimise environmental impact.
